91福利在线你懂的—麻花mv在线看免费观看电视剧视频播放平台,久久天堂福利资源极速下载

Project Process

From Design Concept to Completion

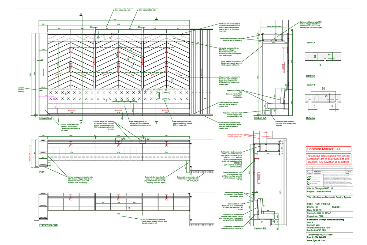
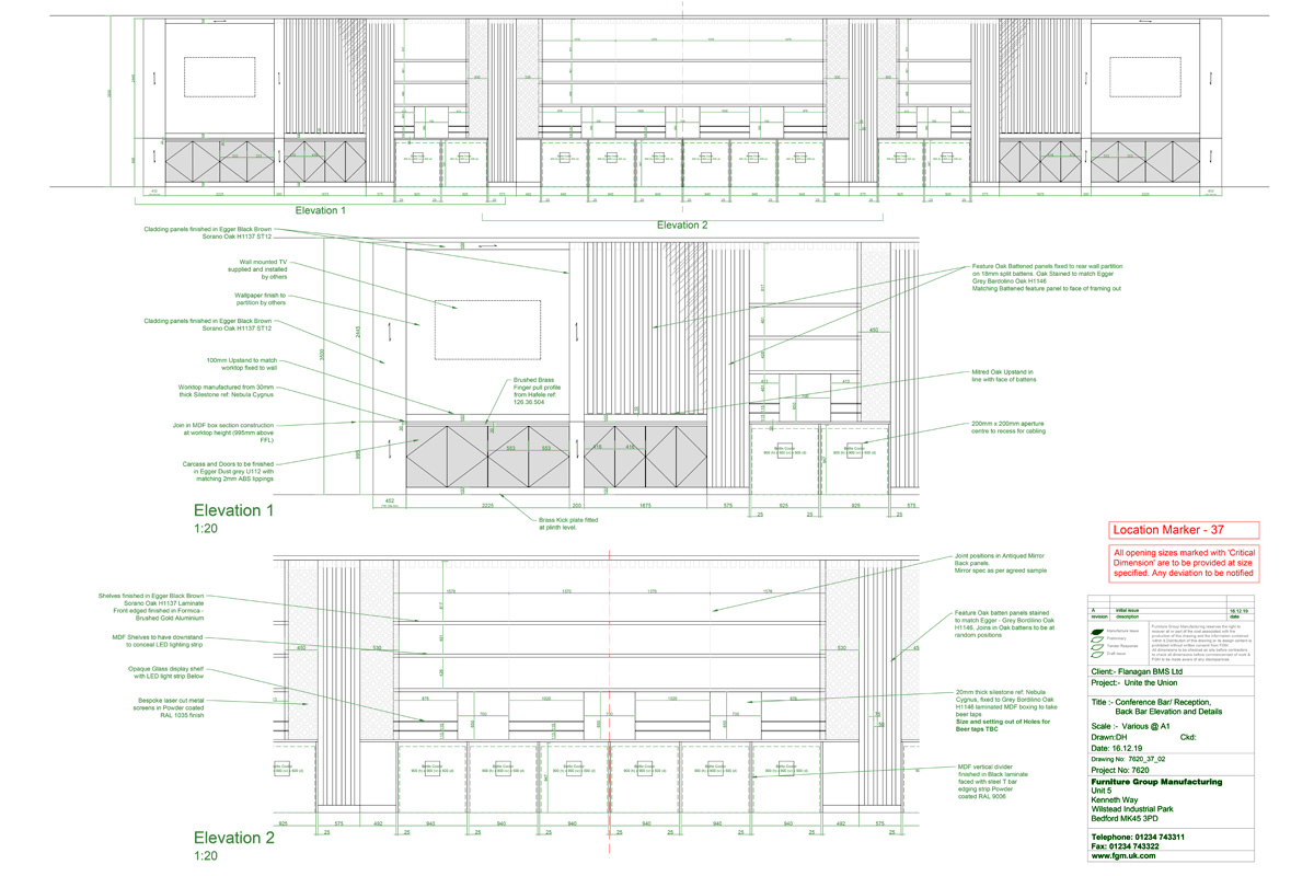
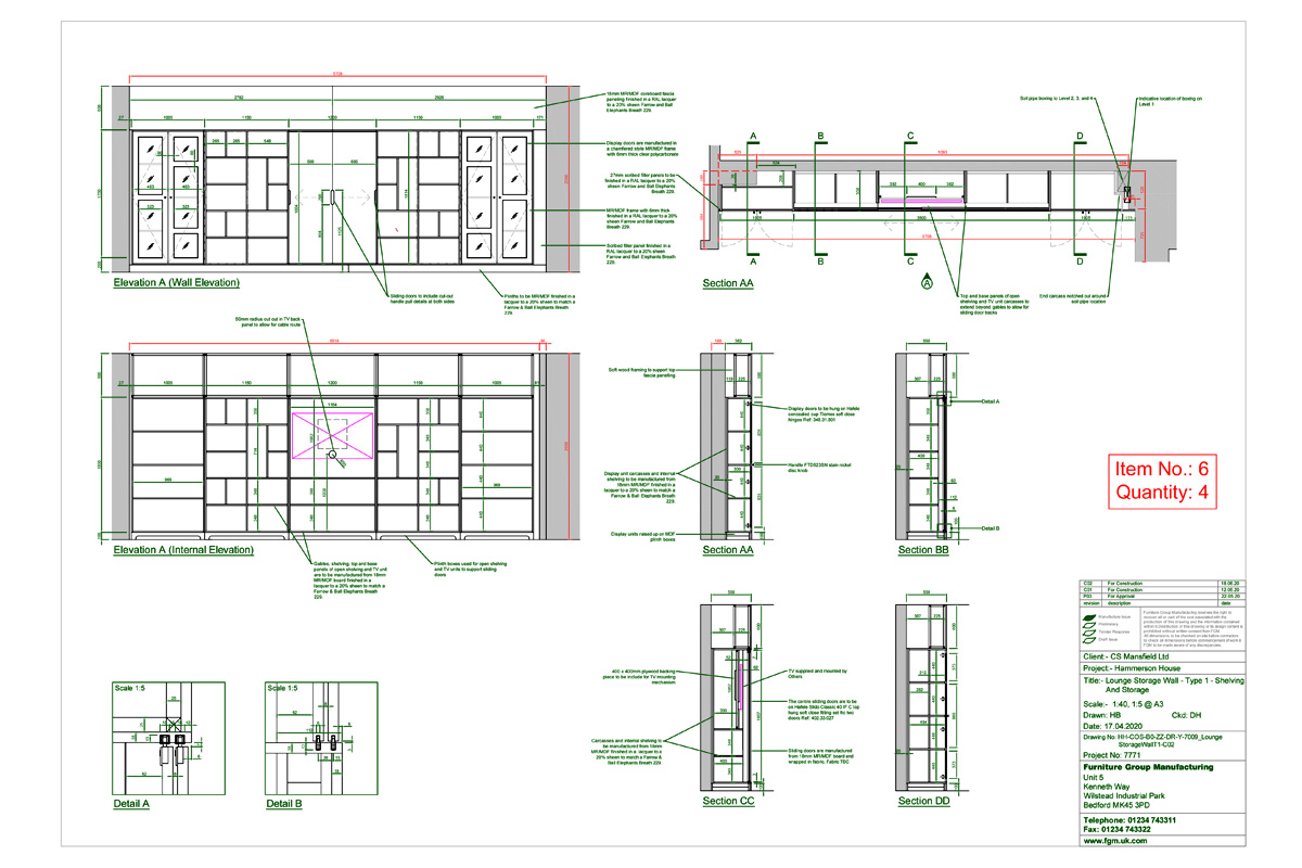
At Furniture Group we understand the importance of collaboration to ensure the successful conclusion to any project from concept to completion. Our core design principles are to encourage dialogue between all stakeholders at all stages. Our in-house design team will offer advice based on experience, to clarify roles and responsibilities and to establish the fine details that are so important to every project. We take time and consideration when looking at how to design any bespoke joinery pieces with the skills to interpret a client's initial concept, developing it to create detailed design drawings.

The whole production process can be broken down into 4 stages:

Pre-Award

  • Estimating
  • Design and Value Engineering (VE) advice
  • Draft programme
  • Design concepts
  • Samples

Design

  • Survey
  • Design workshops
  • Workshop drawings
  • Detailed programme advice
  • Material sign-off

Production

  • Material procurement
  • Manage
  • Manufacture
  • Quality control

Installation

  • Delivery
  • Check
  • Fit out
  • Quality control
  • Sign-off after completion
If you have a vision. We can make it a reality.